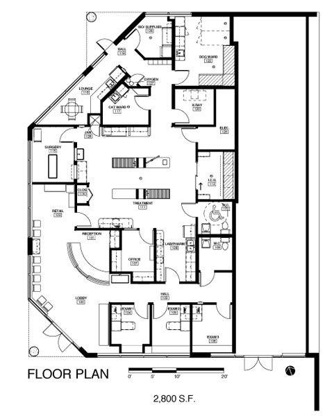
Stats, floor plan, and photos of this 2009 Hospital Design People's Choice Award contestant.
Untitled Document

Bollinger Canyon Animal Hospital
San Ramon, CA
No. of doctors: 1
Cost per square foot: $175.00
Total cost: $877,000.00
Building cost: $490,000.00
Total square footage: 2,800
Leasehold conversion






From exam room tips to practice management insights, get trusted veterinary news delivered straight to your inbox—subscribe to dvm360.