
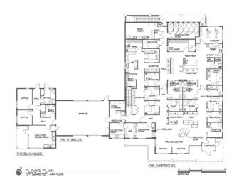
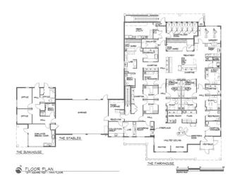
Stats, floor plan, and photos of this 2010 Hospital Design People's Choice Award contestant.

Stats, floor plan, and photos of this 2010 Hospital Design People's Choice Award contestant.

Veterinary hospital stats, floor plan, and photos of this 2010 Hospital Design People's Choice Award contestant.

Large veterinary hospital floor plan of this 2010 Hospital Design People's Choice Award contestant.

Stats, floor plan, and photos of this 2010 Hospital Design People's Choice Award contestant.

Stats, floor plan, and photos of this 2010 Hospital Design People's Choice Award contestant.

Stats, floor plan, and photos of this 2010 Hospital Design People's Choice Award contestant.

This photo tour gives you a look a eight reception areas and advice from veterinary architect Mark Hafen, AIA, about what key decisions you should make about your own.

This photo tour gives you a look a eight reception areas and advice from veterinary architect Mark Hafen, AIA, about what key decisions you should make about your own.

This photo tour gives you a look a eight reception areas and advice from veterinary architect Mark Hafen, AIA, about what key decisions you should make about your own.

This photo tour gives you a look a eight reception areas and advice from veterinary architect Mark Hafen, AIA, about what key decisions you should make about your own.

This photo tour gives you a look a eight reception areas and advice from veterinary architect Mark Hafen, AIA, about what key decisions you should make about your own.

This photo tour gives you a look a eight reception areas and advice from veterinary architect Mark Hafen, AIA, about what key decisions you should make about your own.

This photo tour gives you a look a eight reception areas and advice from veterinary architect Mark Hafen, AIA, about what key decisions you should make about your own.

Before you build, make sure clients can access your site--even during rush hour.

Check out this floor plan from Westbury Animal Hospital, the 2009 Hospital of the Year. The three views of this Houston hospital include the finish materials floor plan, traffic flow, and zoning.

How do you expand your practice's workspace and preserve a piece of history? Renovate a church. The 2009 Hospital Design Competition People's Choice winner practices medicine in a charming relic.

The winners of the Veterinary Economics Hospital Design Competition come from all over the United States.

An open facility is more than a building design; it's a way of life at California Veterinary Specialists in Carlsbad, Calif. The doctors at this practice share space and cases in a convenient, free-flowing facility.

Stats, floor plan, and photos of this 2009 Hospital Design People's Choice Award contestant.

Stats, floor plan, and photos of this 2009 Hospital Design People's Choice Award contestant.

Stats, floor plan, and photos of this 2009 Hospital Design People's Choice Award contestant.

Stats, floor plan, and photos of this 2009 Hospital Design People's Choice Award contestant.

Stats, floor plan, and photos of this 2009 Hospital Design People's Choice Award contestant.

Stats, floor plan, and photos of this 2009 Hospital Design People's Choice Award contestant.

Stats, floor plan, and photos of this 2009 Hospital Design People's Choice Award contestant.

Stats, floor plan, and photos of this 2009 Hospital Design People's Choice Award contestant.

Stats, floor plan, and photos of this 2009 Hospital Design People's Choice Award contestant.

Stats, floor plan, and photos of this 2009 Hospital Design People's Choice Award contestant.

Stats, floor plan, and photos of this 2009 Hospital Design People's Choice Award contestant.

Stats, floor plan, and photos of this 2009 Hospital Design People's Choice Award contestant.