
|Articles|March 7, 2008
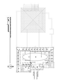
2008 Hospital of the Year: Second-floor plumbing plan
Author(s)Amanda Bertholf
Animal Medical & Surgical Center in Scottsdale, Ariz.
Advertisement
Advertisement
Newsletter
From exam room tips to practice management insights, get trusted veterinary news delivered straight to your inbox—subscribe to dvm360.
Advertisement
Advertisement
Advertisement
Trending on dvm360
1
CDC warns of rabies risks following Maryland feral cat outbreak
2
Veterinary Scene Down Under: Wildlife veterinarian gains global insights into treating wildlife cases efficiently
3
What is canine cognitive dysfunction syndrome?
4
VISHDAAL and diagnostic challenges in senior cats
5






