Stats, floor plan, and photos of this 2009 Hospital Design People's Choice Award contestant.
Untitled Document

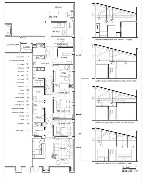
Mt. Tabor Veterinary Care
Portland, OR
No. of doctors: 1
Cost per square foot: $54.00
Total cost: $301,700.00
Building cost: $120,100.00
Total square footage: 2,250
Leasehold conversion






From exam room tips to practice management insights, get trusted veterinary news delivered straight to your inbox—subscribe to dvm360.